New Construction Homes

M3 Construction excels at building well functioning, efficient, and beautiful homes. We have two main floor plans that can be modified to fit our clients’ needs. We are also well-versed in helping customers design and build the fully custom home of their dreams!

Our small team allows us to focus on the details, with someone frequently on site to ensure the work is completed with care. View our proven designs below, or contact us to start the process toward your own custom house!

The estimates listed below include plans with unfinished basements. Basement finishing packages and potential discounts are available.

Front view of a modern single-family house with white siding, gray stone accents, and a black garage door, set on a grassy lawn with a concrete driveway.

The Theodore:

A detailed architectural floor plan of a house showing the layout of the first and second levels, including rooms like bedrooms, bathroom, kitchen, living room, garage, storage, and future designated spaces, with dimensions marked.

Estimated: $360,000 + Lot

Discover the perfect blend of comfort and modern design in this spacious 1,591-square-foot ranch.

The main floor features an open-concept layout where the living room, dining area, and kitchen blend seamlessly — ideal for daily life and entertaining. The kitchen is designed for functionality with a center island and a walk-in pantry, while the nearby mudroom and laundry area keep the entryway clutter-free.

This home offers three bedrooms and two full baths on the main level, including a primary suite with a private bath.

Downstairs, the unfinished basement provides incredible potential, pre-planned for a future family room, fourth bedroom, and additional bath to grow with you.

A modern single-story house with a gray stone front, white siding, and black garage doors, sitting on a grassy lawn with a concrete driveway.
A closet with wooden shelves and white brackets, with hardwood floor and a closed door on the right.
A modern open-concept living and kitchen area with hardwood floors, white walls, and recessed lighting, featuring wooden kitchen cabinets and stainless steel appliances.
Photo of a shower with marble-style tile walls and two corner shelves. A round shower head is visible in the upper right corner.
An open-concept kitchen and living area with hardwood floors, light gray walls, large windows, a sliding glass door, and a ceiling light fixture.
A bedroom with white walls, a window showing outside, a ceiling fan with a light, and a closet with white bi-fold doors.
A laundry room and mud room with wooden bench and coat hooks on the wall.
A modern bathroom with a white vanity, black faucet, large mirror, white bathtub with dark fixtures, and wood-look flooring.

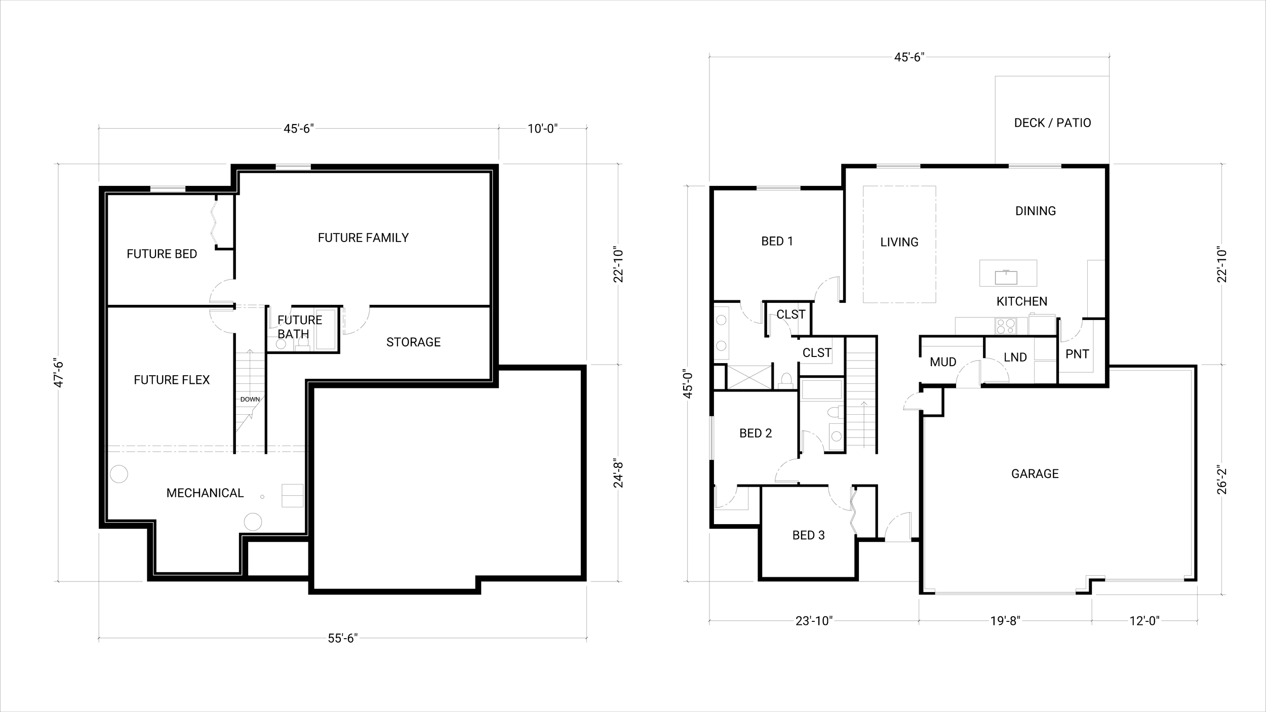
The Leslie:

Floor plan of a two-story house with various rooms labeled, including bedrooms, bathrooms, kitchen, garage, living and family rooms, storage, and mechanical areas, with dimensions noted.

Estimated: $362,000 + Lot

This thoughtfully designed 1,609-square-foot ranch plan maximizes comfort and functionality on the main level.

The open-concept layout includes a well-planned kitchen —complete with an eat-at island and walk-in pantry — that flows effortlessly into the dining and living areas. The Leslie sports a welcoming electric fireplace and split windows for a cozy and jaw-dropping view from the entrance.

A combined mudroom and laundry area, located just off the garage, adds everyday convenience and helps keep the home organized.

With three bedrooms and two full baths on the main floor, including a private primary suite with a walk-in closet, this home offers everything you need for daily living, with the added benefit of an unfinished basement ready for future needs.

Newly built single-story house with white brick and siding, two-car garage, driveway, and a cloudy sky.
A laundry room with hookups and vent, opening into a bright living room with wood flooring and large windows.
A living room with hardwood floors, white walls, recessed ceiling lights, a fireplace between two windows, and a sliding glass door leading outside.
A two-car garage with a concrete floor, white walls, and a closed garage door. Some tools and supplies are stored in the back corner.
A living room with light wood floors, white walls, a fireplace, several windows, and a sliding glass door leading outside.
A bedroom with white walls, plush gray carpet, a ceiling fan with a light, a large window showing outdoor greenery, and an open door leading to another room.
A modern kitchen with white cabinets, stainless steel appliances, a kitchen island with a dark base, pendant lights, sliding glass door, and wood-look flooring.
An entryway with wood flooring, white walls, a built-in bench with cubbies, a wall-mounted wooden coat rack with hooks, and an open doorway leading to a kitchen with pendant lights and white cabinets.
A bedroom with gray carpet, white walls, a window, ceiling fan, and open closet door.

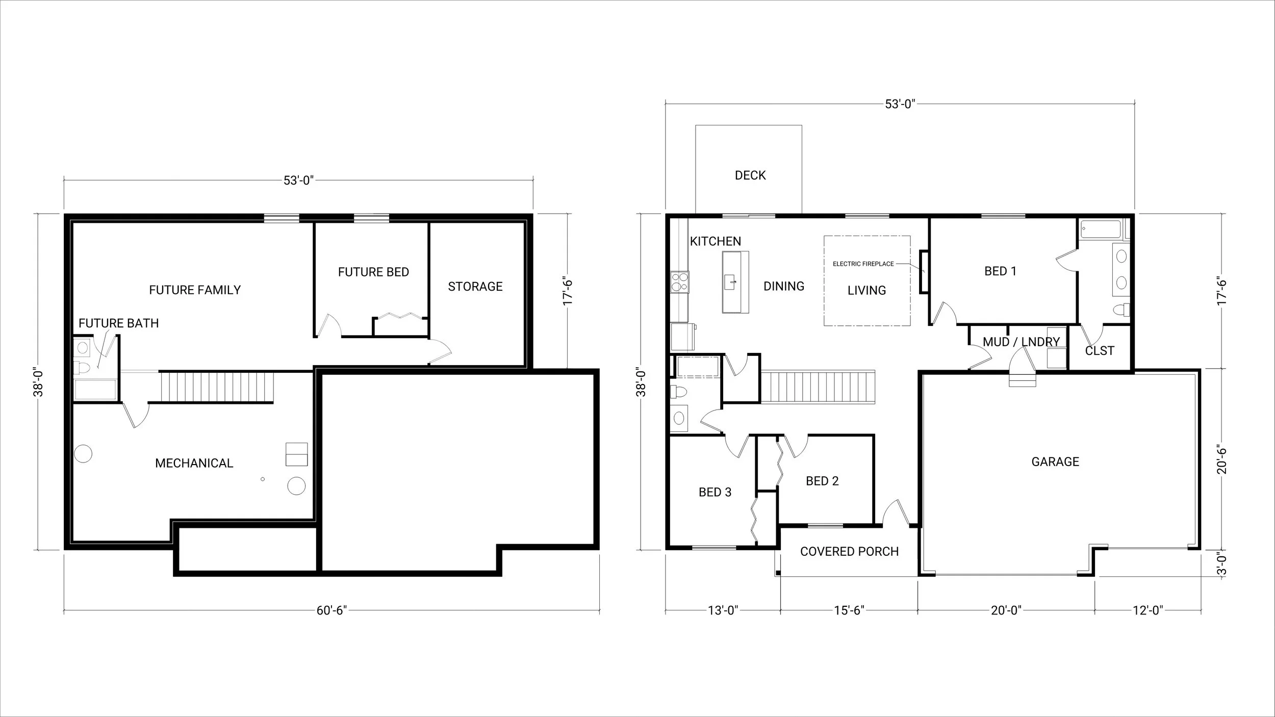
The Rebecca:

Floor plan of a two-story house with labeled rooms including a kitchen, dining area, living room, bedrooms, bathrooms, garage, deck, covered porch, and future spaces for family, bedrooms, bath, and storage.

Estimated: $354,000 + Lot

This efficient 1,501-square-foot ranch plan offers a comfortable and highly functional plan for modern living. It is our most cost-effective standard design despite how much it offers!

Enjoy the curb appeal of a large covered front porch and the flexibility of a 3-car garage!

The heart of the home is the open-concept central living area, featuring a living room with an electric fireplace that joins the dining space and kitchen. The kitchen is equipped with an eat-at island, walk-in pantry, and direct access to the rear deck or patio.

The convenient, combined drop zone and laundry room is right off the garage.

The main floor includes three bedrooms. The primary suite has a a designated bath and walk-in closet.

The unfinished basement offers significant potential, already laid out for a family room, fourth bedroom, bath, and large storage/flex room.

Front view of a modern single-story house with a brick and siding exterior, two-car garage, and a well-maintained lawn.
Modern bathroom with dual sinks, white vanity, large mirrors, brass wall lights, walk-in shower with glass door and marble tile walls, and hardwood floor.
A modern kitchen with white cabinets, stainless steel refrigerator, microwave, stove, and island, with hardwood flooring and sliding glass door leading to an outdoor deck.
A hallway with white walls, hardwood floors, black front door, and ceiling lights.
Modern kitchen with white upper cabinets, gray lower cabinets, a kitchen island with a white countertop, stainless steel refrigerator, microwave, and stove, pendant lights, and hardwood flooring.
A bedroom with white walls, a window letting in natural light, a ceiling fan with a light, and a closet with sliding doors.
A living room with light wood flooring, white walls, large windows, sliding glass door leading to a balcony, ceiling fan, and a partial view of the kitchen island with a pendant light.
A living room with hardwood floors, white walls, a ceiling fan, recessed lighting, a fireplace with a wooden surround, and a window to the right.

Custom Homes:

Building a custom home shouldn’t be complicated, and it shouldn’t feel impersonal.

At M3 Construction, we put genuine care into every detail because we are personally involved in every step of the process. From initial discussion to design your perfect layout to the final walk-through, we are there. By keeping our internal team small, we keep our overhead low, passing those savings directly to you without sacrificing quality. We rely on a trusted network of subcontractors we’ve worked with for years, ensuring that everyone who steps foot on the job site shares our standard of excellence.

A family room with green walls, large window, beige carpet, and visible ceiling lights.
A family room with green walls, beige carpet, and recessed lighting. There's a staircase with wooden railing and black metal balusters, and doorways leading to other rooms.
A kitchen with wooden cabinets, a kitchen island, pendant lights, and a chandelier, with a person wearing a red jacket partially visible on the right.
Interior of a living room with a stone fireplace, green walls, and a large window showing a park outside.
A kitchen with wooden cabinets, granite countertops, and hardwood flooring. There are three pendant lights above the island, large windows letting in natural light, and a stove with a range hood.
A living room with a stone fireplace and a wall-mounted TV, light gray walls, wood flooring, two white doors with windows, and a ceiling fan.
Kitchen with brown cabinets, granite countertops, white subway tile backsplash, and hardwood floors. There are white pendant lights hanging from the ceiling and a white sliding barn door on the wall.
Interior of a staircase landing with carpeting, white walls, and wooden handrails, overlooking a living room area with windows and signs.
Modern living room with a brown leather sectional sofa, round wooden coffee table, black side table with a potted plant, sliding glass door with gray curtains, built-in shelf with plants and decor, mounted TV above a double-sided fireplace, hardwood floors, and light-colored walls.
Modern kitchen with a large island, black cabinets, white countertops, and a built-in microwave. Bright space with a dining area near windows, wooden flooring, and minimal decor.
A modern bathroom with white walls, wooden flooring, two floating vanities with black faucets, oval mirrors, a small window above one vanity, a rectangular window on the far wall, a white rug on the floor, and a basket with towels near the vanities.
A bedroom with a bed, white bedding, and two black wall-mounted lamps above black bedside tables with natural wood drawers. There is a full-length mirror, a small table with a framed photo or art, and a mirror on a stand. The room has light-colored wooden flooring and a white wall with three framed photographs.
Modern bathroom with a glass shower enclosure, a built-in bathtub, a framed artwork on the wall, a window with wood trim, and a white bath mat on the tile floor.
Modern bathroom with double sink vanity, oval mirrors, flower arrangement, and open shelving with towels and decor.
Modern bathroom with a freestanding bathtub, a double vanity with a flower arrangement, potted plants, a large window with blinds, and a walk-in shower with glass walls.
A basement room with beige walls, carpeted floor, recessed ceiling lights, sliding barn door on a black track, stairs behind the door, and open door leading to another room.