Hands-On Building. Higher Standards.
We keep our team small to keep your quality high and your costs reasonable. Experience the difference of working with builders who treat your home like their own.
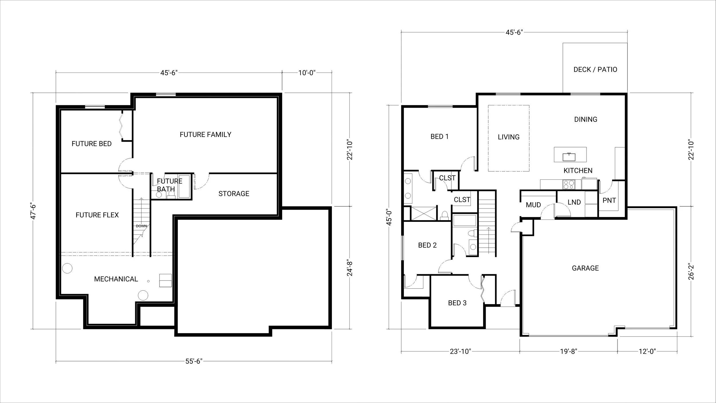
New Construction Homes
Whether you fall in love with one of our professionally designed floor plans or dream of a fully custom home, we can bring it to life. You can use our proven layouts as a starting point, or work with us to design something completely unique from the ground up. Whichever path you choose, youβll experience the same superior craftsmanship and personal attention that M3 Construction is known for.
Guest Suites
Maximize your property's potential with an ADU to fit your needs. Whether for family expansion or rental income, our professionally designed units are built to be cost-effective and beautiful.
What Weβre Working On:
Keep up to date with our latest projects! Follow us on Facebook and Instagram to watch our clientβs dreams become reality.

